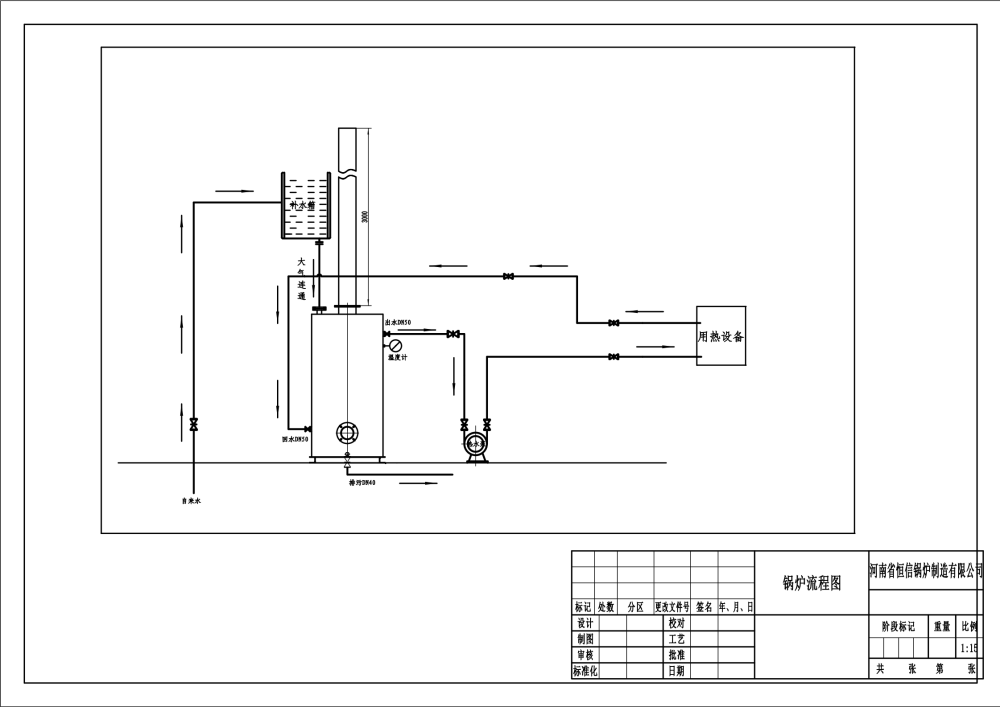
河南省恒信锅炉制造有限公司恒久致远 诚信至上








适用燃料
生物质
可选额定发热量 KW/H
热效率
≥85%
应用范围
酒店,小区,宾馆,企业事业单位,学校,餐饮,医院,机关单位,车间厂房,供暖生活用水,食品生产,道路修建,冶炼铸造,新材料制造等
123
达到国家标准
自动送料系统
保证产品质量
免办证 免年检
自动给水 自动调节负荷
使热效率大幅提高
Copyright @ 2011-2022 河南省恒信锅炉制造有限公司 豫ICP备18018729号-40 XML地图
技术支持:网站模板
扫一扫咨询微信客服